
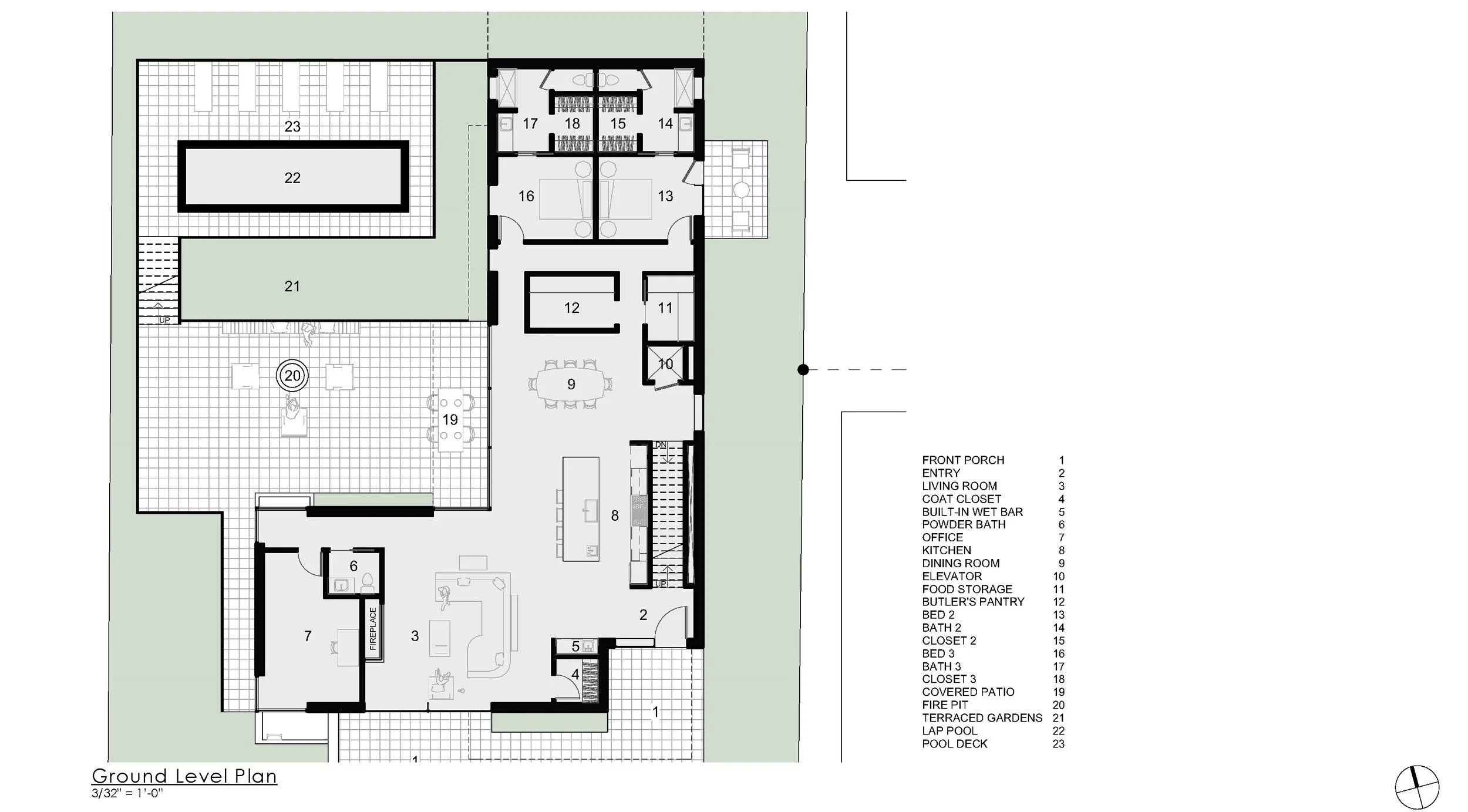
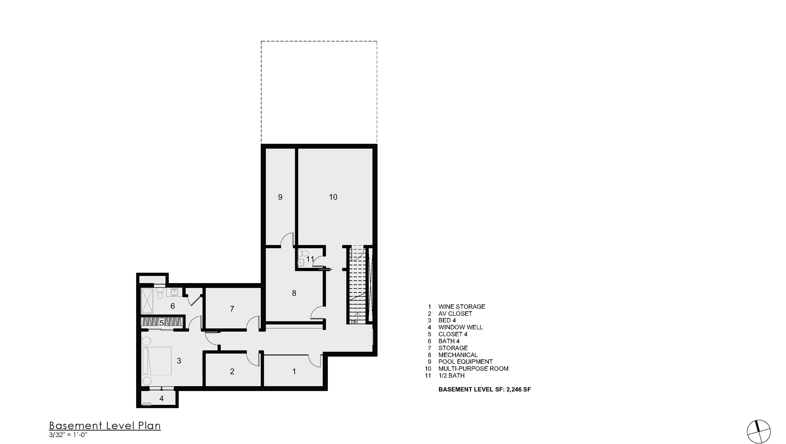
Residential Feasibility Studies
At Sopher Sparn Architects, we provide streamlined feasibility studies to help clients make confident decisions early in the single-family home design process. Understanding a site’s opportunities and constraints is a crucial first step. We help homeowners, prospective buyers, and real estate agents evaluate what’s possible by analyzing zoning, municipal codes, and site-specific factors like topography, views, and access.
Our services include:
• Clarifying and aligning the vision for the future residence
• Conducting quick yield studies to assess buildable area and design potential
Beyond supporting new construction, our feasibility studies are also a powerful tool for marketing vacant lots. By illustrating potential home designs and demonstrating what can be built, we help sellers present a clear, compelling vision to prospective buyers — making properties more attractive and easier to sell.
Our team moves quickly from initial sketches to detailed Revit models, providing accurate square footage calculations and visually engaging concepts. This early work lays the groundwork for a thoughtfully designed custom home and supports informed decisions about investment, design, and marketing strategy.